Строительство культурно-досугового центра в деревне Евдокимова Евдокимовского муниципального образования
Строительство культурно-досугового центра в деревне Евдокимова Евдокимовского муниципального образования.
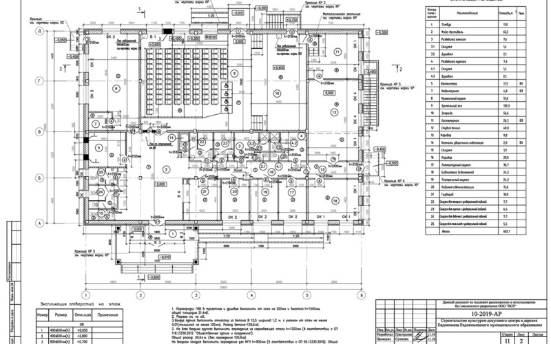
Проектной документацией предусматривается строительство Культурно-досугового центра деревне Евдокимова Евдокимовского муниципального образования.
Площадка под строительство культурно-досугового центра находится в границах населенного пункта, по адресу: Иркутская область, Тулунский район, Евдокимовское МО, д. Евдокимова, Участок свободен от застройки. Абсолютные отметки колеблются в пределах: от 514.95 до 510.70м. Земельный участок не относиться к землям сельскохозяйственного назначения, и не находиться в водоохраной зоне.
Проектируемый культурно-досуговый центр представляет собой одно этажное здание с подвальным этажом (под частью здания), здание имеет прямоугольную форму в плане с габаритными размерами 20,8х29,8м.
Запроектированный культурно-досуговый центр, представляет собой одноэтажное здание, рассчитанное на максимальное единовременное количество посетителей - до 129 человек.
В культурно-досуговом центре запланированы следующие зоны:
- зрелищная часть (эстрада, зрительный зал),
- клубная часть (помещение для библиотеки, кружковой работы),
- служебно-бытовые помещения.
Здание культурно-досугового центра предназначено для проведения различных культурно-развлекательных мероприятий. В зрелищной части предполагается проведение концертов, спектаклей, выступлений самодеятельности. В клубной части - запроектированы кружки: литературный, музыкальный; студия танца. Для проведения концертов и зрелищных мероприятий концертный зал оснащен современным оборудованием.
В библиотеке предусмотрен абонемент с открытым фондом. Предусмотрена мебель и оргтехника.
Для музыкального кружка предусмотрено помещение для 12 учеников. В кабинете предусмотрено электронное пианино, музыкальный центр. При кружке предусмотрена кладовая со стеллажами.
Литературный кружок (учебный класс) оборудован офисной мебелью и техникой.
Питьевой режим для обучающихся обеспечен с использованием бутилированной воды.
При зале для занятий танцами предусмотрены раздевалки с душевыми, раздельные для мальчиков и девочек. Предусмотрено звуковое оборудование и телевизор.
Все кабинеты администрации дома культуры оборудованы мебелью и офисной техникой.
В КДЦ предусмотрены раздельные уборные для мужчин и женщин, мальчиков и девочек, комната уборочного инвентаря.
Зону зрительного зала занимает зал на 100 человек с эстрадой, в т.ч. размещены места для маломобильных групп населения.




