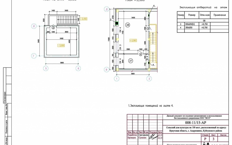
Сельский дом культуры на 100 мест расположенный по адресу: Иркутская область, с. Андрюшино, Куйтунского района.
Сельский дом культуры на 100 мест расположенный по адресу: Иркутская область, с. Андрюшино, Куйтунского района
Для Администрации Андрюшинского муниципального образования была подготовлена рабочая документация, получено заключение государственной экспертизы в строительстве иркутской области (ГАУИО”ИРЭКСПЕРТИЗА”), подтверждена достоверность сметной стоимости объекта.




