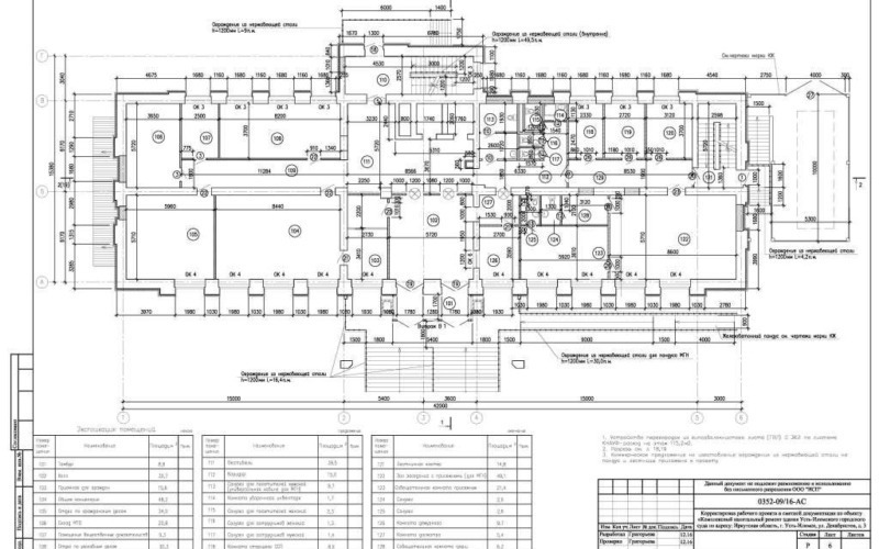
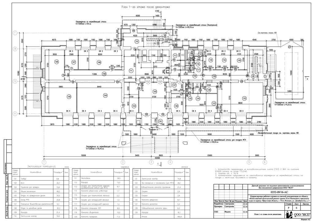
Комплексный капитальный ремонт здания Усть-Илимского городского суда по адресу: Иркутская область, г. Усть-Илимск, ул. Декабристов д.3.

Во второй половине 2016 года ООО “ИСП” одержало победу в конкурсе Управления судебного департамента в Иркутской области на разработку проектной и рабочей документации на Комплексный капитальный ремонт здания Усть-Илимского городского суда.

Проектными решениями предусмотрена полная перепланировка всех этажей здания, замена  инженерных сетей здания, пересмотрен архитектурный облик здания и прилегающая территория.