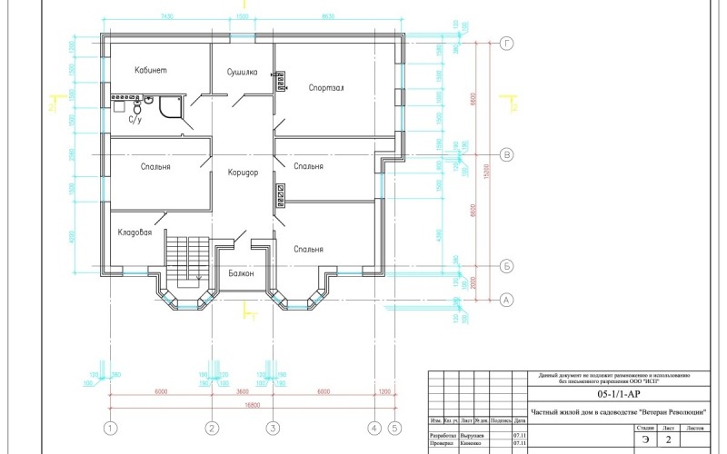
Частный жилой дом в садоводстве “Ветеран революции”

В 2011 году дизайнерской группой ООО “ИСП” разработан эскизный проект, рабочая документация и дизайнерские решения для частного заказчика.